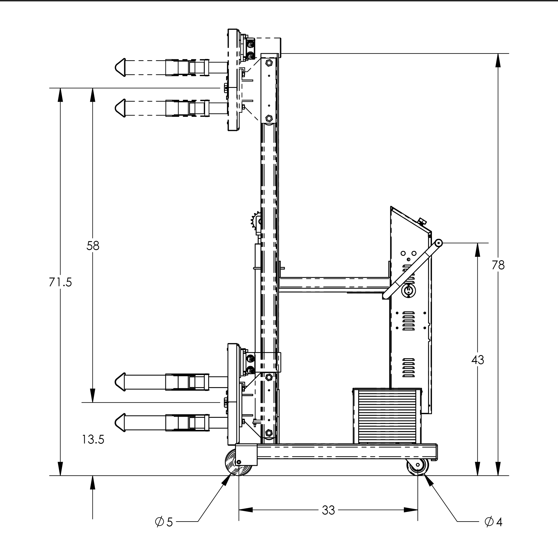
Drum Lifters